

市場一部:0571-28812826
市場二部:0571-28115181
市場三部:0571-28992602
瀏覽次數: 次

| 序號 | 流量范圍(噸/小時) | 適用渠道mm | 水位范圍(mm) |
臨界 淹沒度% |
||
| Q(min) | Q(max) | >寬×高 | h(min) | h(max) | ||
| 1 | 0.3 | 19.4 | >200×250 | 15 | 210 | 0.5 |
| 2 | 0.6 | 47.5 | >250×300 | 15 | 240 | 0.5 |
| 3 | 2.8 | 115.6 | >300×600 | 30 | 330 | 0.5 |
| 4 | 5.4 | 399.6 | >450×800 | 30 | 450 | 0.6 |
| 5 | 9.0 | 903.6 | >600×1000 | 30 | 600 | 0.6 |
| 6 | 12.6 | 1440.0 | >1000×1200 | 30 | 750 | 0.6 |
| 7 | 16.2 | 2268.0 | >1200×1200 | 30 | 750 | 0.6 |
| 8 | 45.0 | 3060.0 | >1400×1200 | 50 | 750 | 0.6 |
| 序號 | 喉道段 | 收縮段 | 擴散段 | 墻高 | 流量參數 | |||||||
| b | L | N | B1 | L1 | La | B2 | L2 | K | D | C | n | |
| 1 | 25 | 76 | 29 | 167 | 356 | 237 | 93 | 203 | 19 | 230 | 217 | 1.550 |
| 2 | 51 | 114 | 43 | 214 | 406 | 271 | 135 | 254 | 22 | 260 | 435 | 1.550 |
| 3 | 76 | 152 | 57 | 259 | 457 | 305 | 178 | 305 | 25 | 460 | 638 | 1.550 |
| 4 | 152 | 305 | 114 | 400 | 610 | 407 | 394 | 610 | 76 | 610 | 1372 | 1.540 |
| 5 | 228 | 305 | 114 | 575 | 864 | 576 | 381 | 457 | 76 | 770 | 1927 | 1.530 |
| 6 | 300 | 600 | 230 | 780 | 1350 | 902 | 600 | 920 | 80 | 800 | 2444 | 1.521 |
| 7 | 450 | 600 | 230 | 840 | 1425 | 948 | 750 | 920 | 80 | 950 | 3737 | 1.537 |
| 8 | 600 | 600 | 230 | 1020 | 1500 | 1000 | 900 | 920 | 80 | 950 | 5051 | 1.548 |

附2:三角堰(triangular weir)
材質
l 15mm厚的玻璃纖維不飽和聚酯復合材料(玻璃鋼)。 流量越大,相應增加壁厚。
注意事項
l 三角口處的尺寸準確、緣臺平直、光滑。板面光滑、平整、無扭曲。
l 三角堰的中心線要與渠道的中心線重合。
l j為堰板嵌入渠道墻的部分,尺寸請用戶根據現場情況而定。

| 序號 | 流量范圍(噸/小時) | 適用渠道 | B | He | p | 流量參數 | ||
| Q(min) | Q(max) | >寬×高 | n | C | ||||
| 1 | 0 | 20 | >275×220 | 275 | 110 | 110 | 2.5 | 5083 |
| 2 | 0 | 40 | >360×288 | 360 | 144 | 144 | 2.5 | 5083 |
| 3 | 0 | 80 | >475×380 | 475 | 190 | 190 | 2.5 | 5083 |
| 4 | 0 | 121 | >560×448 | 560 | 224 | 224 | 2.5 | 5083 |
| 5 | 0 | 182 | >660×528 | 660 | 264 | 264 | 2.5 | 5083 |
| 6 | 0 | 272 | >775×620 | 775 | 310 | 310 | 2.5 | 5083 |
| 7 | 0 | 395 | >900×720 | 900 | 360 | 360 | 2.5 | 5083 |
| 8 | 0 | 616 | >1075×860 | 1075 | 430 | 430 | 2.5 | 5083 |
| 9 | 0 | 899 | >1250×1000 | 1250 | 500 | 500 | 2.5 | 5083 |
| 10 | 0 | 1359 | >1475×1180 | 1475 | 590 | 590 | 2.5 | 5083 |

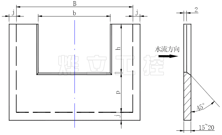
附3:矩形堰(rectangular weir)
材質
l 15~20mm厚的玻璃纖維不飽和聚酯復合材料(玻璃鋼)。 流量越大,相應增加壁厚。
注意事項
l 矩形口處的尺寸要準確、緣臺平直、光滑。板面光滑、平整、無扭曲。
l 矩形堰的中心線要與渠道的中心線重合。
l j為堰板嵌入渠道墻的部分,尺寸請用戶根據現場情況而定。

常用超聲波明渠流量計矩形堰安裝尺寸(單位:mm)
| 序號 | 流量范圍(噸/小時) | 適用渠道 | B | b | h | p | 流量參數 | ||
| Q(min) | Q(max) | >寬×高 | n | C | |||||
| 1 | 0.04 | 85 | >500×500 | 500 | 200 | 163 | 337 | 1.5 | 1280 |
| 2 | 0.05 | 195 | >650×650 | 650 | 260 | 239 | 411 | 1.5 | 1660 |
| 3 | 0.08 | 414 | >750×750 | 750 | 375 | 308 | 442 | 1.5 | 2406 |
| 4 | 0.10 | 803 | >850×850 | 850 | 510 | 387 | 463 | 1.5 | 3318 |
| 5 | 0.15 | 1662 | >1000×1000 | 1000 | 700 | 501 | 499 | 1.5 | 4669 |
| 6 | 0.19 | 3332 | >1250×1250 | 1250 | 875 | 683 | 567 | 1.5 | 5886 |
| 7 | 0.26 | 6504 | >1450×1450 | 1450 | 1160 | 857 | 593 | 1.5 | 8178 |
| 8 | 0.33 | 12643 | >1800×1800 | 1800 | 1440 | 1142 | 658 | 1.5 | 10344 |
| 9 | 0.48 | 26396 | >2150×2150 | 2150 | 1935 | 1453 | 697 | 1.5 | 15060 |
| 10 | 0.62 | 52524 | >2700×2700 | 2700 | 2430 | 1929 | 771 | 1.5 | 19596 |
